A real hobbit house!
The time has come for the mountains of Idaho to have their hobbit-style home!
This home is a custom design based on the Terranova model.
- It has two levels: one above ground and one below.
- The first level has a living room, kitchen, and bedroom with a full bath.
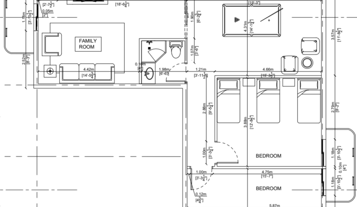
The basement is very spacious and has 3 bedrooms, 2 bathrooms, a billiard area, and a laundry room!
Isn’t it a dream come true?








































































